Útjefte erfpachtperceel oan de Langelaan en de Monnikenweg yn Burgum
De gemeente Tytsjerksteradiel is fan doel om yndividuele perselen greidlân út te jaan ûnder in deregulearre pacht. De gemeente is fan betinken dat, op basis fan objektive, ridlike en ferifiearbere kritearia, ien serieuze kandidaat yn oanmerking komt foar de deregulearre pacht fan dizze perselen. Dit komt om't de hierder yn kwestje earder, by ferkeap fan 'e perselen oan' e gemeente, oanjûn hat dat de hierder dizze lannen jierliks ferpachtsje koe oant de gemeente se ûntwikkele hie.
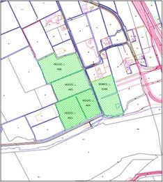
Lokaasje fan it perseel
It giet om stikken greidlân oan de Langelaan en Monnikenweg yn Burgum, bekend as gemeente Bergum, seksje I, nûmer 3086, mei in oerflakte fan 30.510 m2 , bekend as gemeente Hardegarijp, seksje I, nûmer 463, mei in oerflakte fan 23.810 m2 , bekend as gemeente Hardegarijp, seksje I, nûmer 464, mei in oerflakte fan 15.595 m2 , bekend as gemeente Hardegarijp, seksje I, nûmer 465, mei in oerflakte fan 26.075 m2 en bekend as gemeente Hardegarijp, seksje I, nûmer 466, mei in oerflakte fan 32.285 m2 .

Hierkontrakt en hierpriis
De hieroerienkomst wurdt sletten foar in perioade fan ien jier. It begjint op 1 jannewaris 2026 en einiget op 31 desimber 2026 .
De pachtpriis is basearre op de maksimaal tastiene pachtpriis foar it Noardlik Greidlângebiet en wurdt jierliks fêststeld troch de Ryksoerheid foar Undernimmend Nederlân (RVO). Yn 2026 is de pachtpriis € 735 per hektare per jier. De pachtpriis foar 2026 is € 9.3728,21 .
Binne jo it net iens mei de foarstelde hieroerienkomst?
As jo beswieren hawwe tsjin de foarnommen ien-op-ien útjefte fan dizze liberalisearre hieroerienkomst, moatte jo binnen 20 kalinderdagen nei de datum fan dizze publikaasje ( 8 oktober 2025 ) in gearfettingproseduere yntsjinje by de tuskentiidske rjochter fan 'e Arrondissemintsrjochtbank Noard-Nederlân, lokaasje Leeuwarden. Dizze perioade fan 20 dagen is in ferfallingsperioade.
As jo in koarte proseduere oanfreegje, freegje wy jo om ús skriftlik binnen de neamde perioade fan 20 kalinderdagen op 'e hichte te stellen, leafst troch it ûntwerp fan 'e oprop te e-mailen nei de ôfdieling Lânsaken fan 'e gemeente Tytsjerksteradiel, op grondzaken@t-diel.nl . As dat net sa is, nim dan kontakt mei ús op foar 28 oktober 2025. As der in gearfettingsproseduere is ynsteld, kinne der gjin oanspraken tsjin de gemeente yntsjinne wurde oangeande de foarnommen útjefte fan liberalisearre hierkontrakt.
Mei dizze publikaasje fiert de gemeente it útspraak fan 'e Hege Ried fan 26 novimber 2021 (ECLI:NL:HR:2021:1778) út.
Publikaasjedatum: 8 oktober 2025